Nowoczesne mieszkanie w centrum, 2 m.postojowe Lublin, Śródmieście, Centrum

3 pokoje
90.70 m²
15 986,77 zł/m2
4 piętro
WRO-MS-3148
Oblicz ratę kredytu

1 450 000 zł

Nowoczesne mieszkanie w centrum, 2 m.postojowe

Szczegóły oferty

Symbol oferty WRO-MS-3148
Powierzchnia 90,70 m²
Powierzchnia użytkowa [m2] 90,70 m²
Liczba pokoi 3
Liczba sypialni 2
Rodzaj budynku apartamentowiec
Standard
Opłaty w czynszu administracja, CO, Części wspólne, monitoring, ogrzewanie, Winda, woda, woda ciepła, woda/ryczałt na wodę, wywóz nieczystości, wywóz śmieci
Opłaty wg liczników prąd
Piętro 4
Garaż w budynku
Stan lokalu wysoki standard
Okna drewniane
Instalacje dobre
Balkon jest
Liczba balkonów 1
Rok budowy 2007
Widok na osiedle
Woda tak - miejska
Ogrzewanie C.O. miejskie
Winda tak
Liczba wind 1
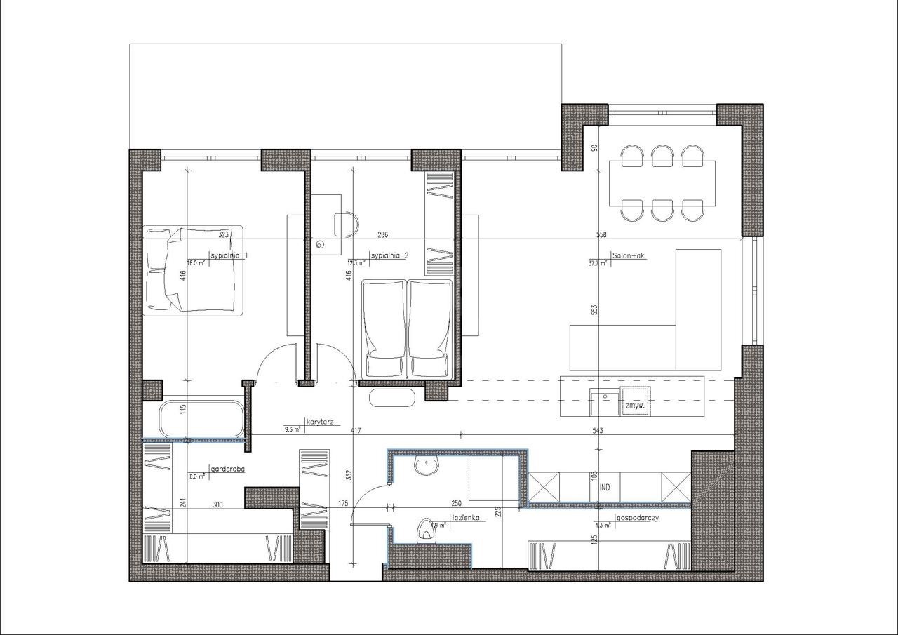
Pomieszczenia
Typ kuchni z nowoczesną zabudową kuchenną
Rodzaj kuchni jasna z oknem
Typ łazienki razem z wc
Liczba łazienek 1
Liczba przedpokoi 1

Opis nieruchomości

Nowoczesne 3-pokojowe mieszkanie na sprzedaż  w centrum Lublina (ul. Spokojna) 

Lokalizacja: ul. Spokojna Śródmieście, Lublin
Powierzchnia: 90,7 m²
Cena mieszkania: 1 450 000 zł
Miejsca postojowe: 80 000 zł (2 miejsca, obok siebie — zakup obligatoryjny)
 


Przestronne 3-pokojowe mieszkanie w wysokim standardzie o powierzchni 90,7 m² znajduje się w nowoczesnym budynku z monitoringiem. Idealne dla osób ceniących design, wygodę oraz bliskość miejskiej infrastruktury, przy jednoczesnym zachowaniu ciszy i prywatności.

Układ pomieszczeń obejmuje:
✔ salon z aneksem kuchennym
✔ 2 niezależne sypialnie (w tym główna z wanną)
✔ łazienkę z nowoczesną armaturą oraz pralnią
✔ przedpokój z garderobą
✔ balkon

Mieszkanie zostało zaprojektowane w jasnej, ponadczasowej stylistyce. Jest klimatyzowane, a instalacja umożliwia montaż dodatkowych jednostek wewnętrznych, co pozwala dostosować komfort chłodzenia do indywidualnych potrzeb.


Atuty nieruchomości

  • jasne i nowoczesne wnętrza, gotowe do wprowadzenia,

  • nasłoneczniony balkon zapewniający dodatkową przestrzeń wypoczynkową,

  • wysoki standard wykończenia,

  • funkcjonalny układ 3 pokoi,

  • duże okna z doskonałym doświetleniem,

  • klimatyzacja z możliwością rozbudowy o dodatkowe jednostki wewnętrzne,

  • 2 sąsiadujące miejsca postojowe w hali garażowej (zakup obligatoryjny),

  • atrakcyjna lokalizacja — ścisłe centrum Lublina.

Ogrzewanie oraz ciepła woda z sieci miejskiej.


 

Do mieszkania przynależą 2 miejsca postojowe w hali garażowej, usytuowane obok siebie.
Koszt miejsc: 80 000 zł (łącznie).
Zakup miejsc jest obligatoryjny.


Lokalizacja

Nieruchomość położona w jednej z najbardziej prestiżowych i wygodnych części miasta — Śródmieście. W pobliżu znajdują się sklepy, restauracje, kawiarnie, uczelnie, komunikacja miejska oraz tereny rekreacyjne. Lokalizacja sprawia, że to wybór idealny zarówno do zamieszkania, jak i pod wynajem premium.

Zapraszam na prezentację:

Jakub Wrona +48 512 370 707

Lokalizacja nieruchomości

Kalkulatory

Kalkulator kredytowy

Wysokość raty

PLN
%

Kalkulator kosztów

Podatek od czynności cywilno-prawnych

Taksa notarialna
(opłata notarialna)

Wniosek o wpis do KW

VAT od prowizji
agencji nieruchomości

VAT od taksy notarialnej
(opłaty notarialnej)

Prowizja agencji nieruchomości

Wypisy aktu notarialnego

Razem

Uwaga: mogą wystąpić dodatkowe opłaty za założenie księgi wieczystej oraz ustanowienie hipoteki.

PLN
PLN
PLN
PLN
PLN
PLN
%
PLN

Podobne oferty

Oferta specjalna

Komfortowy apartament, inwestycja pod wynajem

Lublin, Śródmieście

3 pokoje 70 m2 15 598,81 zł/m2
Oferta specjalna

Mieszkanie na sprzedaż

Lublin, Śródmieście

2 pokoje 70 m2 19 509,40 zł/m2

Apartament w wysokim standardzie, ul. Wieniawska

Lublin, Śródmieście

4 pokoje 90 m2 19 900,00 zł/m2

Apartament w prestiżowej Rezydencji Ogród Saski

Lublin, Śródmieście

3 pokoje 72 m2 20 000,00 zł/m2